Bản vẽ thiết kế nhà: Cẩm nang toàn diện từ A-Z cho gia chủ 2025
Ngày cập nhật: 18/10/2025 bởi Lê Xuân Minh
Nếu ví việc xây nhà như một bản giao hưởng hoành tráng, thì bản vẽ thiết kế nhà chính là tổng phổ chi tiết mà nhạc trưởng (kiến trúc sư) viết ra cho cả dàn nhạc (đội ngũ thi công) cùng thực hiện. Xây nhà mà không có một bộ bản vẽ chuyên nghiệp cũng giống như ra khơi mà không có hải đồ - một hành trình đầy rủi ro, tốn kém và khó có thể đến được đích mong muốn.
Tuy nhiên, đối với hầu hết các gia chủ, việc tiếp cận một tập hồ sơ thiết kế nhà dày cộp với những đường nét và ký hiệu kỹ thuật phức tạp có thể gây ra không ít bối rối. Hồ sơ thiết kế nhà gồm những gì? Làm sao để đọc bản vẽ xây dựng cơ bản? Chi phí thiết kế nhà hết bao nhiêu?
Trong cẩm nang toàn diện này, Xây Dựng Minh Duy sẽ "giải mã" tất cả những thắc mắc đó một cách đơn giản và trực quan nhất. Chúng tôi sẽ giúp bạn hiểu rõ vai trò, cấu trúc và cách làm chủ bộ tài liệu quan trọng này, biến bạn thành một chủ đầu tư thông thái và tự tin.
Mục lục
Tầm quan trọng của bản vẽ thiết kế nhà: Nền tảng cho một công trình hoàn hảo

Nhiều người cho rằng việc thuê thiết kế là tốn kém và không cần thiết, đặc biệt với những ngôi nhà đơn giản. Đây là một quan niệm sai lầm có thể dẫn đến những hậu quả đáng tiếc. Một bộ bản vẽ thiết kế nhà chuyên nghiệp không phải là chi phí, mà là một khoản đầu tư mang lại vô vàn lợi ích:
-
Hình dung trực quan ngôi nhà tương lai: Thông qua các bản vẽ 2D và đặc biệt là phối cảnh 3D, bạn có thể thấy trước được hình dáng, màu sắc, cách phân chia không gian của ngôi nhà mình, từ đó điều chỉnh cho đến khi thực sự ưng ý.
-
Cơ sở pháp lý để xin phép xây dựng: Đây là thành phần bắt buộc trong bộ hồ sơ xin cấp phép xây dựng theo quy định của pháp luật.
-
Nền tảng để dự toán chi phí chính xác: Dựa trên bản vẽ chi tiết, nhà thầu có thể bóc tách khối lượng vật tư và nhân công một cách chính xác đến 95%, giúp bạn kiểm soát ngân sách, hạn chế tối đa phát sinh.
-
Kim chỉ nam cho quá trình thi công: Bản vẽ là "ngôn ngữ chung" giữa chủ nhà, kiến trúc sư và đội thợ. Mọi chi tiết từ cái móng, cây cột, đường điện, ống nước đều được thể hiện rõ ràng, đảm bảo thi công đúng kỹ thuật, đúng ý đồ thiết kế.
-
Giảm thiểu rủi ro và chi phí "đập đi xây lại": Việc tính toán kỹ lưỡng trên bản vẽ giúp tránh được những sai lầm trong thực tế, những chi phí sửa chữa tốn kém và làm chậm tiến độ công trình.
Một bộ hồ sơ thiết kế nhà chuyên nghiệp gồm những gì?
Khi bạn nghe đến "bộ bản vẽ", đó không chỉ là vài tờ giấy về cách bố trí phòng. Một hồ sơ thiết kế nhà gồm những gì thực sự là một tập tài liệu kỹ thuật dày, được chia thành 3 phần chính, mỗi phần giữ một vai trò riêng biệt và không thể tách rời.
Phần 1: Hồ sơ thiết kế kiến trúc (phần "linh hồn")
Đây là phần thể hiện ý tưởng, hình dáng, công năng và thẩm mỹ của ngôi nhà. Nó quyết định xem ngôi nhà của bạn có đẹp không, có tiện nghi không. Hồ sơ kiến trúc bao gồm:
-
Phối cảnh 3D ngoại thất & nội thất: Giúp bạn hình dung rõ nhất về ngôi nhà sau khi hoàn thiện.
-
Mặt bằng công năng các tầng: Thể hiện cách bố trí các phòng, kích thước chi tiết, vị trí cửa đi, cửa sổ, và gợi ý sắp xếp nội thất cơ bản.
-
Mặt bằng lát sàn: Ghi chú loại gạch, kích thước và cách ốp lát cho từng khu vực.
-
Mặt bằng trần: Bố trí hệ thống trần thạch cao, đèn chiếu sáng.
-
Mặt đứng: Thể hiện hình dáng bên ngoài của ngôi nhà từ các phía (trước, sau, hai bên).
-
Mặt cắt: Cung cấp "lát cắt" dọc ngôi nhà, cho thấy chiều cao các tầng, kích thước dầm, sàn, cầu thang...
-
Chi tiết thang, vệ sinh, cửa, ban công, lan can...: Phóng to và mô tả chi tiết cấu tạo, vật liệu cho các khu vực quan trọng.
Phần 2: Hồ sơ thiết kế kết cấu (phần "xương sống")
Nếu kiến trúc là "linh hồn", thì kết cấu chính là "bộ xương" đảm bảo sự vững chãi, bền bỉ và an toàn tuyệt đối cho công trình. Phần này đặc biệt quan trọng và đòi hỏi sự tính toán chính xác của các kỹ sư. Nó bao gồm:
-
Mặt bằng móng, chi tiết móng: Quyết định giải pháp móng (móng đơn, móng băng, móng bè) phù hợp với địa chất và tải trọng.
-
Mặt bằng định vị cột, chi tiết cột.
-
Mặt bằng kết cấu dầm, sàn các tầng.
-
Chi tiết kết cấu cầu thang, bể nước, bể phốt...
-
Bảng thống kê cốt thép chi tiết: Liệt kê số lượng, chủng loại thép cần sử dụng cho toàn bộ công trình.
Phần 3: Hồ sơ thiết kế M&E - cơ điện (phần "hệ thần kinh")
Đây là phần thể hiện "hệ thần kinh và mạch máu", đảm bảo mọi hoạt động và tiện nghi sinh hoạt trong nhà được vận hành trơn tru. Hồ sơ M&E bao gồm:
-
Hệ thống điện: Sơ đồ cấp điện, vị trí ổ cắm, công tắc, điều hòa; hệ thống chiếu sáng; hệ thống chống sét.
-
Hệ thống cấp thoát nước: Sơ đồ đường đi của ống cấp nước sạch và thoát nước bẩn cho các khu vực bếp, vệ sinh, máy giặt...
-
Hệ thống thông tin liên lạc: Vị trí lắp đặt internet, truyền hình cáp, camera an ninh...
Hướng dẫn đọc bản vẽ xây dựng cơ bản cho người không chuyên
Bạn không cần phải là một kiến trúc sư để hiểu được bản vẽ thiết kế nhà của mình. Nắm được cách đọc bản vẽ xây dựng ở mức cơ bản sẽ giúp bạn dễ dàng trao đổi với nhà thầu và giám sát thi công. Hãy tập trung vào 3 loại bản vẽ quan trọng nhất:
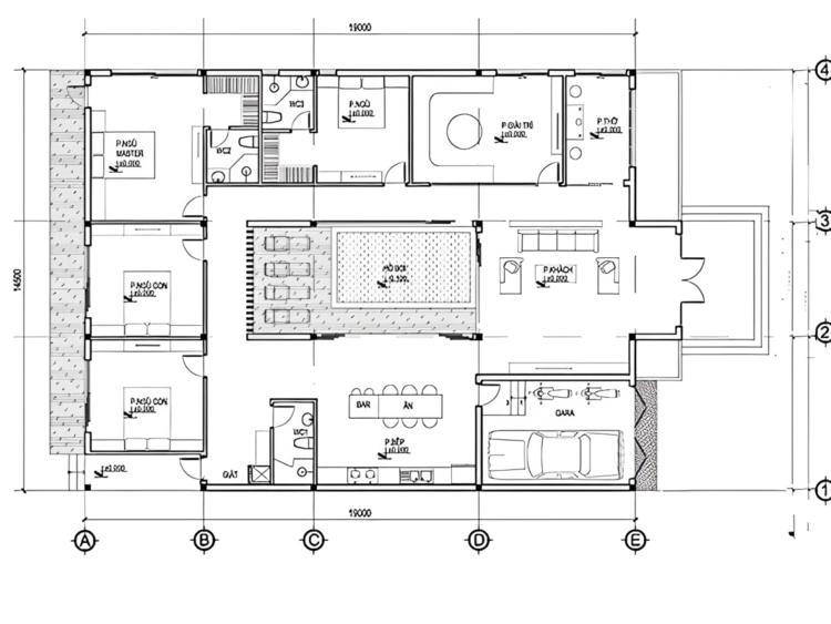
Cách đọc mặt bằng công năng
Đây là bản vẽ quan trọng nhất đối với gia chủ. Nó là hình chiếu của ngôi nhà nhìn từ trên xuống sau khi đã "cắt ngang" qua cửa sổ.
-
Nhận diện các không gian: Dựa vào tên ghi chú (P. Khách, P. Ngủ, Bếp, WC...) và cách bố trí nội thất.
-
Xem kích thước: Các con số "dim" (dimension) thể hiện kích thước chi tiết của phòng, của tường. Hãy chắc chắn rằng kích thước này đủ để bạn kê vừa các đồ nội thất mong muốn.
-
Chú ý ký hiệu cửa: Vòng cung thể hiện hướng mở của cửa đi. Cửa sổ thường có ký hiệu khác. Đảm bảo hướng mở cửa không gây vướng víu trong quá trình sử dụng.
-
Tường và cột: Các đường nét đậm, tô đen thường là tường chịu lực hoặc cột kết cấu.
Cách đọc mặt đứng
Bản vẽ này cho bạn thấy "bộ mặt" của ngôi nhà.
-
Hình dung tổng thể: Xem hình dáng bên ngoài, phong cách kiến trúc (hiện đại, tân cổ điển...).
-
Xem vật liệu hoàn thiện: Các ghi chú sẽ chỉ rõ khu vực nào ốp đá, khu vực nào sơn, loại cửa sổ là nhôm kính hay gỗ...
-
Xem cao độ: Các con số ký hiệu cao độ (+0.000, +3.900...) cho biết chiều cao của nền, các tầng và đỉnh mái so với vỉa hè.
Cách đọc mặt cắt
Hãy tưởng tượng bạn bổ đôi ngôi nhà ra để nhìn vào bên trong.
-
Kiểm tra chiều cao thông thủy: Đây là khoảng cách từ sàn đến trần, một yếu tố quan trọng quyết định sự thoáng đãng của không gian. Chiều cao thông thủy lý tưởng cho nhà ở thường từ 2.8m đến 3.2m.
-
Xem cấu tạo sàn, mái: Bạn có thể thấy độ dày của các lớp sàn bê tông, cấu tạo của mái.
-
Hình dung không gian cầu thang: Mặt cắt thể hiện rõ độ dốc, số bậc và hình dáng của cầu thang.
Kinh nghiệm làm việc với kiến trúc sư để có bản vẽ thiết kế nhà ưng ý
Để quá trình thiết kế diễn ra suôn sẻ, sự hợp tác ăn ý giữa bạn và kiến trúc sư (KTS) là vô cùng quan trọng. Dưới đây là một vài kinh nghiệm làm việc với kiến trúc sư hiệu quả:
-
Chuẩn bị kỹ lưỡng thông tin ban đầu: Hãy liệt kê rõ ràng nhu cầu của gia đình bạn: bao nhiêu phòng, thói quen sinh hoạt, phong cách yêu thích, ngân sách dự kiến...
-
Giao tiếp cởi mở và trung thực: Đừng ngần ngại chia sẻ những gì bạn thích và không thích. Sự trao đổi thẳng thắn sẽ giúp KTS nắm bắt đúng ý tưởng của bạn.
-
Tôn trọng chuyên môn nhưng đừng ngại đặt câu hỏi: KTS có chuyên môn về thẩm mỹ, kỹ thuật và công năng. Tuy nhiên, bạn hoàn toàn có quyền hỏi "Tại sao lại thiết kế như vậy?" để hiểu rõ hơn về ngôi nhà của mình.
-
Thống nhất phương án cuối cùng trước khi thi công: Việc thay đổi thiết kế trong quá trình thi công sẽ gây ra rất nhiều tốn kém và phiền phức. Hãy chắc chắn bạn đã hoàn toàn hài lòng với bản vẽ thiết kế nhà trước khi khởi công.
Chi phí thiết kế nhà được tính như thế nào?
Chi phí thiết kế nhà là khoản đầu tư xứng đáng, thường chiếm khoảng 3-5% tổng chi phí xây dựng. Cách tính phổ biến nhất hiện nay là:
Chi phí thiết kế = Tổng diện tích xây dựng (m²) x Đơn giá thiết kế/m²
Bảng đơn giá thiết kế tham khảo (cập nhật 2025):
| Loại công trình | Phong cách | Đơn giá (VND/m2) |
| Nhà phố | Hiện đại | 180.000 - 250.000 |
| Tân cổ điển | 250.000 - 350.000 | |
| Biệt thự | Hiện đại | 250.000 - 350.000 |
| Tân cổ điển / Cổ điển | 350.000 - 500.000+ |
Ưu đãi đặc biệt: Hầu hết các công ty xây dựng trọn gói uy tín như Xây Dựng Minh Duy hiện nay đều có chính sách MIỄN PHÍ 100% chi phí thiết kế khi khách hàng ký hợp đồng thi công trọn gói. Đây là một lợi ích rất lớn, giúp bạn tiết kiệm một khoản chi phí đáng kể mà vẫn sở hữu một bộ hồ sơ thiết kế chất lượng.
Một bản vẽ thiết kế nhà chất lượng là viên gạch đầu tiên, là nền móng vững chắc nhất cho hành trình xây dựng tổ ấm. Việc đầu tư thời gian và tâm huyết vào giai đoạn này sẽ mang lại cho bạn sự an tâm, chủ động và một kết quả cuối cùng viên mãn.
Tại Xây Dựng Minh Duy, chúng tôi hiểu rằng mỗi ngôi nhà là một câu chuyện riêng. Đội ngũ kiến trúc sư của chúng tôi luôn sẵn sàng lắng nghe, đồng hành để biến những mong muốn của bạn thành một bản vẽ hoàn chỉnh, tối ưu về công năng, chuẩn mực về kỹ thuật và độc đáo về thẩm mỹ. Khi lựa chọn dịch vụ xây nhà trọn gói của chúng tôi, bạn không chỉ nhận được một công trình chất lượng mà còn được sở hữu một bộ hồ sơ thiết kế đẳng cấp hoàn toàn miễn phí.
CÔNG TY TNHH TƯ VẤN THIẾT KẾ XÂY DỰNG MINH DUY
-
Địa chỉ: 95/121 Đ. Lê Văn Lương, P. Tân Hưng, Quận 7, TP HCM
-
Hotline/Zalo: 0982.96.93.79 (Mr. Minh)
-
Email: xaydungminhduy@gmail.com
-
Website: www.xaydungminhduy.com