5 mẫu nhà phố 2 tầng 4x20 đẹp, ấn tượng
Ngày cập nhật: 10/03/2025 bởi Lê Xuân Minh
Mục lục
Những mẫu nhà phố 2 tầng đẹp 4×20 dù có mặt tiền hạn chế là 4m nhưng lại có ưu thế về chiều sâu, nên vẫn có rất nhiều phương án thiết kế hợp lý mà các chủ đầu tư không nên bỏ lỡ. Dưới đây, Xây Dựng Minh Duy giới thiệu tới bạn 5 mẫu nhà phố 4x20 hiện đại đáng chú ý, sở hữu không gian sống tiện nghi và không kém phần thoải mái, cùng chi phí xây dựng phù hợp.
Mẫu 1: Nhà phố 2 tầng đẹp 4×20 khỏe khoắn trẻ trung
Mẫu nhà ống 2 tầng đẹp 4×20 dưới đây hiện diện với các đường nét hiện đại xuất hiện rõ nét. Đặc trưng với những mảng khối giật cấp và các họa tiết đậm chất hình học. Ngôi nhà có các ô cửa kính lớn, chạy dọc từ tầng 2 xuống tầng 1. Việc sử dụng kính là giải pháp hợp lý khi xây nhà ống có mặt tiền hẹp. Bởi với chiều sâu lớn thì rất cần những thiết kế nhằm tối ưu ánh sáng như vậy, giúp không gian bớt được phần nào ngột ngạt. Góc ban công và khoảng sân nhỏ tuy không quá rộng nhưng được bố trí thêm cây xanh khá đẹp mắt. Tạo sự mát mẻ cho khuôn viên sống.

Ngoại thất sử dụng tông màu trắng nhẹ nhàng, kết hợp ăn ý cùng hệ cửa, cổng sắt màu nâu đậm.
Công năng tầng 1 bao gồm sân, phòng khách, phòng bếp kết hợp phòng ăn, phòng ngủ và WC chung. Khu vực sân trước đóng vai trò là điểm tiếp giáp giữa con người trong nhà và môi trường xã hội, đồng thời, giúp lấy ánh sáng dành cho tầng 1. Phòng khách và phòng bếp kết hợp phòng ăn được thiết kế mở giúp mang đến sự tiện lợi trong sinh hoạt cũng như phát huy được công năng sử dụng của mỗi phòng. Phía cuối tầng sẽ là phòng ngủ và khu WC chung tiện lợi.

Mặt bằng tầng 1
Khu vực tầng 2 sẽ là nơi dành cho không gian nghỉ ngơi với 2 phòng ngủ lớn thiết kế hiện đại. Trong đó, phòng ngủ lớn hơn hướng ban công ra mặt tiền. Cả hai phòng đều có ban công với ánh sáng và không khí tự nhiên thổi từ bên ngoài vào. Ở khu vực trung tâm gần cầu thang là phòng sinh hoạt chung, đây vừa là khoảng đệm thoáng cho không khí lưu thông mà còn là nơi gia đình tụ tập trò chuyện cùng nhau.

Mặt bằng tầng 2
Mẫu 2: Nhà phố 2 tầng đẹp 4×20 không gian xanh thoáng mát
Thoạt nhìn, mẫu nhà ống 2 tầng đẹp 4×20 gây chú ý với diện mạo trông vô cùng tươi xanh và mát mẻ. Đó là nhờ phía trước nhà được trông khá nhiều loại cây tươi xanh. Vừa mang lại tính thẩm mỹ cao, vừa có tác dụng làm dịu mát không gian sống bên trong, nhất là với những nhà ống 2 tầng nằm ở hướng tây. Vì có mặt tiền 4m khá hạn chế, mặt tiền ngôi nhà được thiết kế tối giản chỉ có những khối hình vuông vắn đã tôn lên vẻ đẹp hiện đại, trẻ trung của phong cách kiến trúc này.

Hệ thống đèn âm trần ở tầng 2 giúp tổ ấm trở nên lung linh và nổi bật hơn so với các công trình xung quanh, dù là trong đêm tối.
Tại tầng 1, phòng khách nằm ngay tại vị trí cửa ra vào. Kế đến là 1 phòng ngủ đơn giản. Phòng bếp và phòng ăn liên thông với nhau ở vị trí cuối nhà nhằm hạn chế mùi thức ăn lan sang những khu vực khác. Phòng sinh hoạt chung nằm cạnh cầu thang, là nơi quây quần, sum vầy của cả gia đình.

Mặt bằng tầng 1
Hai phòng ngủ tại tầng 2 được thiết kế với diện tích gần bằng nhau, cùng nội thất tiện nghi, đảm bảo sự thoải mái trong từng giấc ngủ. Cạnh sân phơi là một toilet sử dụng chung cho không gian tầng một, giúp tối ưu diện tích một cách hiệu quả. Phía trước nhà là khoảng thông tầng vô cùng rộng thoáng.

Mặt bằng tầng 2
Mẫu 3: Nhà phố 2 tầng đẹp 4×20 mái thái 4 phòng ngủ
Mẫu nhà ống 2 tầng đẹp 4×20 này chứng minh rằng, mặt tiền hẹp vẫn có thể đẹp với phong cách Tân cổ điển sang trọng. Thiết kế ngoại thất của mẫu nhà đẹp được tối giản bớt các đường nét, pha trộn phong cách hiện đại nhiều hơn để Tân cổ điển trở nên nhẹ nhàng, hài hòa và đẹp mắt. Các chi tiết đặc trưng như hệ trụ cột, mái thái, được xử lý khéo léo để, ... mặt tiền trở nên cực kỳ cuốn hút trong nền sơn trắng và xám chủ đạo.

Bằng sự linh hoạt trong kiến trúc, ngôi nhà hiện lên vô cùng tinh tế với các mảng khối, họa tiết thanh lịch
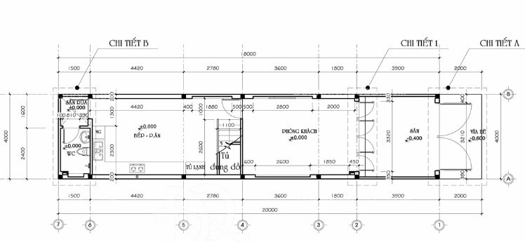
Không gian tầng 1 bao gồm khu vực để xe ở phía trước, kế tiếp là phòng khách và cầu thang. Phía bên trong bố trí 1 phòng ngủ, nhà bếp + ăn và nhà wc + sân phơi. Các không gian được bố trí khoa học, đảm bảo sự thoải mái cho gia đình trong sinh hoạt.

Mặt bằng tầng 1
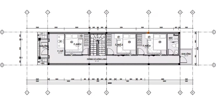
Tầng 2 được bố trí 3 phòng ngủ có diện tích tương đương nhau, 1 phòng thờ và 1 nhà wc. Ở đầu tầng và cuối tầng đều có ban công nên giúp dòng không khí luôn được chuyển tiếp. Nhờ đó mà không gian sẽ luôn thoáng mát.

Mặt bằng tầng 2
Mẫu 4: Nhà phố 2 tầng đẹp 4x20 hiện đại 3 phòng ngủ có gara
Mẫu nhà ống 2 tầng đẹp 4×20 này có diện mạo không cần cầu kỳ nhưng vẫn thể hiện trọn vẹn nét khỏe khoắn, vững chắc của các mảng khối. Phần tầng 2 được thiết kế đua rộng hơn so với tầng 1, giúp “ăn gian” diện tích, tận dụng để góc ban công rộng hơn đồng thời che chắn cho phần gara bên dưới. Ở mặt tiền, các khối hình học sắp xếp đan xen kết hợp cùng tông màu trắng nhẹ nhàng cùng chút sắc vàng gợi cảm giác tươi trẻ, ấm áp.

Bản vẽ thiết kế nhà 2 tầng 4x20m đơn giản không chỉ giúp không gian trông hài hòa, khoa học mà còn tiết kiệm chi phí kha khá cho gia chủ.
Tầng 1 được bố trí khu gara để ô tô hoặc kinh doanh, 1 phòng khách, phòng bếp ăn và phòng vệ sinh ngay bên cạnh. Việc thiết kế không gian liên thông từ chỗ để xe đến phòng khách, nhà bếp và khu vệ sinh giúp quá trình di chuyển . Giếng trời thiết kế chiếu thẳng xuống sân phơi (gần nhà vệ sinh), làm nhiệm vụ đón sáng, lưu thông không khí hiệu quả.

Mặt bằng tầng 1
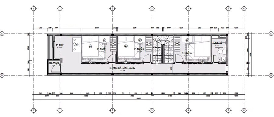
Tầng 2 được bố trí công năng 3 phòng ngủ, 1 phòng thờ và 1 phòng wc. Phòng thờ lớn bố trí ngay cạnh ban công, nội thất đơn giản để tiết kiệm diện tích.Tiếp đến là 2 phòng ngủ tối giản thiết kế, đảm bảo sự thông thoáng
Phòng ngủ còn lại đặt gần cầu thang, gần với phòng wc ở cuối nhà.

Mặt bằng tầng 2
Mẫu 5: Nhà phố 2 tầng đẹp 4x20 đơn giản mái bằng
Sở hữu thiết kế mái bằng đơn giản nhưng mẫu nhà ống 2 tầng đẹp 4×20 vẫn trông vô cùng cuốn hút. Tầng 1 được trang trí những ô cửa lam và cổng chính bằng khung sắt có khe thoáng, đảm bảo không lo bí bách. Khoảng sân nhỏ nhưng đủ cho một chút không gian xanh, giúp khuôn viên thêm phần sinh động. Tầng 2 lại là đôi chút sự phá cách của các mảng khối với đường cắt mạnh mẽ, phóng khoáng, cùng sự giao hòa của thiên nhiên.

Mẫu thiết kế nhà phố 2 tầng đẹp có hình khối kiến trúc hiện đại và khá đơn giản
Tầng 1 mẫu nhà 2 tầng rộng 4m dài 20m được thiết kế khu sân chơi và để phương tiện di chuyển. Đi vào trong là không gian phòng khách, cầu thang, phòng bếp ăn và wc. Phòng khách, bếp và phòng ăn được thiết kế liền mạch, cách bài trí thông thoáng, tạo nên nối kết ấm cúng cho khu vực sinh hoạt chung.

Mặt bằng tầng 1 nhà ống 2 tầng đơn giản
Không gian tầng 2 bao gồm 3 phòng ngủ, wc và giếng trời. Phòng ngủ của bố mẹ được thiết kế đầu hồi hướng ra ban công, ngay gần với các phòng ngủ của con cái bên trong và có nhà vệ sinh riêng. Hai phòng ngủ còn lại sử dụng chung nhà vệ sinh ở giữa.

Mặt bằng tầng 2
Hy vọng rằng với mẫu nhà phố 2 tầng đẹp 4×20 mà chúng tôi giới thiệu trong bài viết này sẽ giúp bạn đọc có thêm thật nhiều ý tưởng trong tương lai dành cho mẫu nhà của mình. Nếu Quý gia chủ, các chủ đầu tư đang có ý định tìm một đơn vị thiết kế, thi công xây dựng uy tín, chuyên nghiệp, hãy gọi ngay Xây Dựng Minh Duy theo Hotline/Zalo 0982.96.93.79 để được tư vấn nhanh nhất nhé!
Hãy đồng hành cùng đội ngũ công nhân viên của công ty Xây Dựng Minh Duy để chúng tôi mang đến tổ ấm đáng sống và mở ước dành cho gia đình bạn. Nếu gia đình bạn đang có nhu cầu thiết kế nhà phố, xây dựng nhà, xây nhà cấp 4, sửa nhà, cải tạo lại ngôi nhà, xin vui lòng liên hệ đến công ty Xây Dựng Minh Duy để được công ty tư vấn, báo giá xây dựng một cách tỉ mỉ và chi tiết nhất.
Chúng tôi chân thành cảm ơn đến toàn thể quý khách hàng đã quan tâm và tin tưởng đến công ty trong thời gian qua. Đáp lại những tình cảm đó, chúng tôi sẽ không ngừng phấn đấu, học hỏi để mang đến những thiết kế mới và những ngôi nhà đẹp, đáng sống đến toàn thể quý khách hàng.
Mọi thông tin chi tiết, cũng như cần tư vấn xin liên hệ!
CÔNG TY TNHH TƯ VẤN THIẾT KẾ XÂY DỰNG MINH DUY
VPGD: A45 Đường Số 2, KDC Kim Sơn, P. Tân Phong, Quận 7, TP HCM
Mobile: 0982.96.93.79 (Mr. Minh)
Email: xaydungminhduy@gmail.com
Web: www.xaydungminhduy.com