4 mẫu nhà ống 2 tầng 4x15m 3 phòng ngủ đẹp hiện đại nhất
Ngày cập nhật: 10/03/2025 bởi Lê Xuân Minh
Mục lục
Những mẫu nhà ống 2 tầng 3 phòng ngủ được các gia đình có từ 3 - 6 thành viên chung sống đặc biệt quan tâm. Mẫu nhà này có sự đa dạng phong cách thiết kế đồng thời vẫn đầy đủ công năng, đáp ứng nhu cầu sinh hoạt của cả gia đình. Nếu bạn đang tìm kiếm cho mình mẫu nhà ống đẹp này Xây Dựng Minh Duy xin giới thiệu đến bạn một số mẫu nhà ống 2 tầng 4x15m 3 phòng ngủ đẹp hiện đại nhất hiện nay trong bài viết dưới đây.
Mẫu nhà ống 2 tầng 4x15m 3 phòng ngủ mái thái xinh xắn tươi trẻ
Dù có chiều ngang khiêm tốn, mẫu nhà ống 2 tầng 4x15m 3 phòng ngủ vẫn tạo được sự ấn tượng mới mẻ, gần gũi với thiết kế mái thái truyền thống. Thiết kế hai khối trụ tròn ốp sát tường đăng đối cân xứng hài hòa nối liền với hệ mái mang đến hơi thở tân cổ điển nhẹ nhàng. Ngoài ra, thiết kế mái còn được trang trí thêm phù điêu tròn hai bên với các đường sọc ngang trắng ốp đá vàng nhạt tạo nên sự bề thế, cao ráo và chút cổ kính cho mẫu nhà đẹp.

Thiết kế nhà ống 2 tầng mái thái 4×15 có 3 phòng ngủ
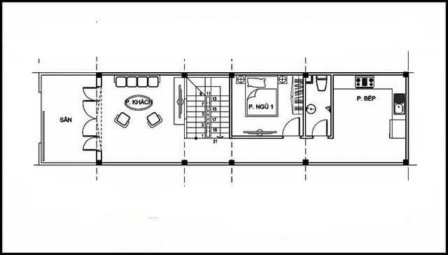
Tại tầng 1, kiến trúc sư đã dành một phần mặt tiền trước làm khoảng sân nhỏ, để đậu xe và thiết kế tiểu cảnh đặc sặc trang trí. Bước vào sảnh chính là phòng khách đơn giản, ấm cúng, kế đến là nhà vệ sinh và phòng ngủ. Trong cùng là gian bếp ăn liền kề với phòng ăn và nhà vệ sinh chung nhỏ hơn.

Mặt bằng tầng 1
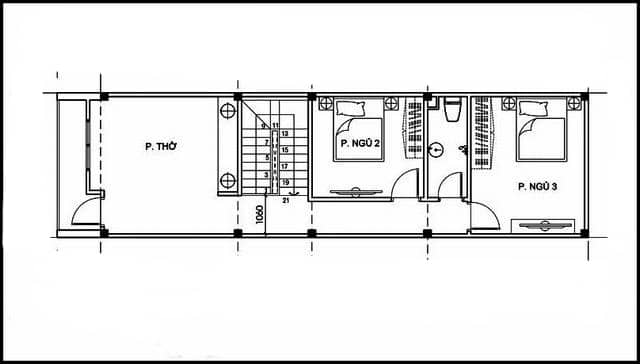
Tầng 2 mẫu nhà ống 2 tầng gồm có 2 phòng ngủ với đầy đủ nội thất tiện nghi. Phía trước hướng ra ban công thoáng mát là gian thờ trang nghiêm của gia đình. Nơi đây cũng bố trí thêm bộ bàn ghế để gia đình có thể quây quần nói chuyện. Phía cuối nhà là nhà vệ sinh kín đáo và riêng tư.

Mặt bằng tầng 2
Mẫu nhà ống 2 tầng 4x15m có 3 phòng ngủ hiện đại không gian mở
Mẫu nhà ống 4x15m 2 tầng quy mô 3 phòng ngủ dưới đây có thiết kế sang trọng, hiện đại với chi phí xây dựng phù hợp với tình hình tài chính của nhiều gia đình. Cổng sắt được thiết kế rộng rãi được sơn đen đảm bảo sự chắc chắn và làm nổi bật cho không gian. Toàn bộ mặt tiền tầng 1 được ốp đá ốp đá granite màu sáng sang trọng. Khung cửa chính lớn sử dụng hệ cửa nhôm kính hiện đại mang tới sự thoáng sáng cho không gian bên trong và nâng cao thẩm mỹ cho ngoại thất bên ngoài ngôi nhà. Phía mặt tiền tầng 2 được thiết kế mở tinh tế để không gian trong nhà luôn có sự liên kết với bên ngoài.

Phối cảnh mặt tiền đẹp của nhà ống 2 tầng 3 phòng ngủ
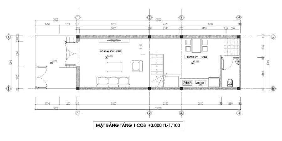
Tầng 1 mẫu nhà ống 2 tầng 4x15m 3 phòng ngủ được bố trí lần lượt là khu sân trước tận dụng để trồng cầy hoặc để xe. Kế đến là phòng khách đầy đủ tiện nghi. Cầu thang thông tầng ở giữa ngăn cách khu vực tiếp khách với các khu sinh hoạt chung bên trong là phòng ngủ và phòng bếp.

Mặt bằng tầng 1 nhà ống 4x15m
Tầng 2 có 2 phòng ngủ với không gian thoải mái, sử dụng chung nhà vệ sinh đặt ở giữa, rất tiện nghi cho sinh hoạt của cả gia đình. Phòng thờ được đặt cạnh cầu thang hướng ra ban công thoáng đãng để đón nắng và gió.

Mặt bằng tầng 2 nhà ống 2 tầng đẹp
Mẫu nhà ống 2 tầng 1 tum 4x15m có 3 phòng ngủ trang nhã
Ngắm nhìn phối cảnh mẫu nhà ống 2 tầng 4x15m 3 phòng ngủ này bạn sẽ cảm nhận được tinh thần thiết kế chủa đạo của ngôi nhà chính là hiện đại, trẻ trung. Đây là mẫu nhà ống 2 tầng được rất nhiều gia đình ưu chuộng. Mặt tiền ngôi nhà được tạo nên bởi những thiết kế dứt khoát chắc chắn và vuông vức. Chính thiết kế đầy sáng tạo này đã tạo nét mới mẻ, phóng khoáng và độc đáo hơn cho không gian sống.

Mẫu nhà ống 2 tầng 3 phòng ngủ 4×15 có tum
Tầng 1 nhà ống 2 tầng đẹp được thiết kế bao gồm khu vực phòng khách và phòng bếp. Các khu vực được bố trí hợp lý và ngăn cách rõ với nhau bởi cầu thang thông tầng đặt ở giữa.

Mặt bằng tầng 1
Tầng 2 gồm 1 phòng ngủ, 1 phòng giải trí làm nơi sinh hoạt chung của gia đình và những khoảng tông tầng mát mé. Phòng ngủ được đặt ở phía sau cùng, có thiết kế đơn giản, và phòng vệ sinh khép kín.

Mặt bằng tầng 2
Tầng tum của ngôi nhà được bố trí 2 phòng ngủ đặt đối diện nhau và được ngăn cách bởi cầu thang ở giữa. Cách bố trí này giúp cho việc di chuyển cũng như sinh hoạt thuận tiện hơn.

Mặt bằng tầng tum
Mẫu nhà ống 2 tầng 4x15m có tum 3 phòng ngủ đầy đủ công năng
Mẫu nhà ống 2 tầng 4x15m 3 phòng ngủ đẹp mắt dưới đây được thiết kế theo phong cách hiện đại với những đường nét tối giản, đem đến vẻ đẹp thanh thoát, gần gũi với người nhìn. Mặt tiền mẫu nhà ống được sử dụng đa dạng những loại vật liệu đang được ưa chuộng hiện nay như kính khung nhôm ở hệ thống cửa và ban công, gạch thông gió ở tường rào, lam che, cửa sổ dạng lá sách bằng gỗ. Tất cả tạo nên một tổng thể ngoại thất hoàn hảo và đầy sức sống khiến ai đi ngang cũng phải ngước nhìn. Màu sắc cũng được sử dụng tinh tế với gam trắng chủ đạo tôn lên nét tươi trẻ của ngôi nhà.

Phối cảnh ngoại thất ngôi nhà trẻ trung và đầy sức sống
Tại tầng 1, ngay từ cửa chính đi vào là phòng khách rộng rãi với đầy đủ nội thất tiện nghi. Tiếp đến là phòng bếp và ăn được thiết kế liền kề nhau tạo sự thuận tiện cho việc sinh hoạt. Nhà vệ sinh chung được đặt ở cuối nhà đảm bảo nhu cầu sử dụng của cả gia đình ở tầng này.

Mặt bằng tầng 1
Tầng 2 mẫu nhà ống 2 tầng 4x15m 3 phòng ngủ được thiết kế gồm 3 phòng ngủ, 1 nhà vệ sinh chung, có cầu thang ở giữa ngăn cách các khu vực. Các phòng ngủ đều có cửa sổ mở lấy ánh sáng bên ngoài tạo sự thông thoáng, tránh ẩm mốc. Nhà vệ sinh tầng 2 được bố trí gần cầu thang để tiện cho việc sử dụng.

Mặt bằng tầng 2
Tầng tum được thiết kế phòng thờ nhỏ gọn, đối diện với sân thượng đảm bảo sự thông thoáng và yên tĩnh. Phía sau là khoảng sân phơi thoáng rộng phục vụ cho việc giặt giũ và phơi đồ của cả gia đình.

Mặt bằng tầng tum
Hy vọng rằng với mẫu nhà ống 2 tầng đẹp 4×15 mà chúng tôi giới thiệu trong bài viết này sẽ giúp bạn đọc có thêm thật nhiều ý tưởng trong tương lai dành cho mẫu nhà của mình. Nếu Quý gia chủ, các chủ đầu tư đang có ý định tìm một đơn vị thiết kế, thi công xây dựng uy tín, chuyên nghiệp, hãy gọi ngay Xây Dựng Minh Duy theo Hotline/Zalo 0982.96.93.79 để được tư vấn nhanh nhất nhé!
Hãy đồng hành cùng đội ngũ công nhân viên của công ty Xây Dựng Minh Duy để chúng tôi mang đến tổ ấm đáng sống và mở ước dành cho gia đình bạn. Nếu gia đình bạn đang có nhu cầu thiết kế nhà phố, xây dựng nhà, xây nhà cấp 4, sửa nhà, cải tạo lại ngôi nhà, xin vui lòng liên hệ đến công ty Xây Dựng Minh Duy để được công ty tư vấn, báo giá xây dựng một cách tỉ mỉ và chi tiết nhất.
Chúng tôi chân thành cảm ơn đến toàn thể quý khách hàng đã quan tâm và tin tưởng đến công ty trong thời gian qua. Đáp lại những tình cảm đó, chúng tôi sẽ không ngừng phấn đấu, học hỏi để mang đến những thiết kế mới và những ngôi nhà đẹp, đáng sống đến toàn thể quý khách hàng.
Mọi thông tin chi tiết, cũng như cần tư vấn xin liên hệ!
CÔNG TY TNHH TƯ VẤN THIẾT KẾ XÂY DỰNG MINH DUY
VPGD: A45 Đường Số 2, KDC Kim Sơn, P. Tân Phong, Quận 7, TP HCM
Mobile: 0982.96.93.79 (Mr. Minh)
Email: xaydungminhduy@gmail.com
Web: www.xaydungminhduy.com