12+ mẫu thiết kế nhà 2 tầng mặt tiền 5m đẹp mê mẩn
Ngày cập nhật: 10/03/2025 bởi Lê Xuân Minh
Mục lục
Sở hữu một ngôi nhà có phong cách thiết kế hiện đại, kiến trúc hài hòa, ấn tượng là mong ước của nhiều gia đình hiện nay. Tuy nhiên, nếu bạn không phải là kiến trúc sư chuyên nghiệp thì sẽ gặp khó khăn trong khâu lên ý tưởng, thiết kế. Vì vậy, trong bài viết dưới đây, Xây Dựng Minh Duy sẽ chia sẻ tới bạn những mẫu thiết kế nhà 2 tầng mặt tiền 5m nhằm đem đến cho bạn những phương án xây dựng sát thực tế nhất.
Thiết kế nhà 2 tầng mặt tiền 5m kết hợp kinh doanh
Đây là một mẫu nhà phố thích hợp cho những gia chủ có nhu cầu kinh doanh, buôn bán ở tầng trệt. Kiểu nhà giúp bạn tiết kiệm chi phí hiệu quả mà không mất đi nét đẹp hiện đại, đẳng cấp.

Thiết kế sang trọng, hiện đại của mẫu nhà có tầng trệt sử dụng với mục đích kinh doanh
Ngôi nhà được thiết kế phần chóp mái ấn tượng, sáng tạo làm nên điểm nhấn độc đáo cho ngôi nhà. Phần sân trước của tầng trệt khá rộng lớn giúp gia chủ có thể tận dụng làm khu vực kinh doanh tiện lợi. Hệ thống cửa kính được tận dụng tối đa giúp mở rộng không gian mà mang đến sự lộng lẫy cho ngôi nhà.

Bản vẽ công năng tầng 1 và tầng 2
- Tầng 1: Khu vực bán hàng, phòng khách, phòng bếp + ăn, phòng ngủ, WC chung.
- Tầng 2: 2 phòng ngủ, 1 WC chung, phòng thờ.
Mẫu thiết kế nhà phố 2 tầng 5x20m mái bằng
Kiểu nhà mái bằng là sự lựa chọn của đại đa số các gia đình hiện nay. Việc thiết kế và xây dựng mái bằng không có quá nhiều khó khăn và tiết kiệm chi phí hiệu quả.

Phần sân trước nhà có thể tận dụng làm gara ô tô

Bản vẽ chi tiết mặt bằng công năng tầng 1

Bản vẽ công năng tầng 2
Thiết kế nhà ống 2 tầng rộng 5m mái thái
Mái thái là lựa chọn thứ 2 sau mái bằng được nhiều gia chủ yêu thích lựa chọn. Kiểu mái này có nhiều kiểu dáng và màu sắc cho bạn lựa chọn, đem đến một diện mạo ấn tượng cho ngôi nhà.

Ngoại thất ngôi nhà có thiết kế vô cùng bắt mắt với tông màu tương phản là đỏ và vàng

Tầng 1 bao gồm: phòng khách, phòng ăn, phòng bếp, phòng ngủ và WC

Tầng 2 bao gồm: 2 phòng ngủ và giếng trời
Nhà ống 2 tầng mặt tiền 5m thiết kế phong cách hiện đại
Phong cách hiện đại là một trong những phong cách thiết kế được ưa chuộng nhất hiện nay. Phong cách này chú trọng vào cách thiết kế đơn giản, màu sắc trung tính, trang nhã, họa tiết, hoa văn không quá rườm rà đem đến một không gian sống tiện nghi cho gia chủ. Những mẫu nhà dưới đây sẽ là ý tưởng tuyệt vời dành cho bạn:

Mẫu nhà sử dụng cửa sổ lớn, ban công trang trí cây xanh tươi mát

Phần tum phía trên cùng gia chủ có thể tận dụng làm nơi nghỉ ngơi, thư giãn cuối tuần cùng gia đình

Nhà 2 tầng phong cách hiện đại với phần mặt tiền được ốp gạch nâu sáng họa tiết nhẹ nhàng, tinh tế

Nhà phố 2 tầng mặt tiền 5m phong cách hiện đại, sử dụng tông màu gỗ trầm sang trọng
Nhà 2 tầng mặt tiền 5m không gian xanh
Không gian sống được trang trí bằng cây xanh vừa giúp thanh lọc không khí, vừa tạo nét đẹp ấn tượng cho ngôi nhà.

Nhà phố mặt tiền 5m 2 tầng 1 tum với phần ban công trang trí cây xanh đẹp mắt

Mẫu nhà trang trí cây xanh ở tầng tum và phần hông nhà
Mẫu thiết kế nhà 2 tầng mặt tiền 5m phong cách tối giản
Mẫu nhà dưới đây gây ấn tượng với người nhìn nhờ lối kiến trúc độc đáo, tạo cảm giác như 2 khối hình học được xếp chồng lên nhau. Khối thứ nhất là tầng của ngôi nhà được ốp đá màu tối. Khối thứ hai có sự mềm mại hơn nhờ kết cấu độc đáo. Ngoài ra, kiến trúc sư còn thiết kế đan xen đá ốp tường màu sáng với các thanh gỗ hành lang. Từ đó tạo nên một tổng thể thống nhất hài hòa, độc đáo.

Tổng thể có thiết kế ấn tượng, đơn giản nhưng vô cùng tinh tế
Thiết kế nhà 2 tầng ngang rộng 5m ấn tượng
Ngôi nhà dưới đây có phong cách thiết kế đơn giản nhưng đem đến cảm giác thanh lịch, trang nhã. Điều này được thể hiện rõ ràng qua cách phối màu và thanh gỗ, sắt mảnh mai tạo điểm nhấn cho ngôi nhà. Cây xanh được bố trí ở tầng 2 rủ xuống tạo nên sự mềm mại, thơ mộng cho không gian sống.

Thiết kế nhà ống 2 tầng trang trí cây xanh tươi mát
Mẫu mặt tiền nhà 2 tầng 5x10m

Thiết kế nhà 2 tầng 50m2 hiện đại giữa lòng phố nhộn nhịp
Những mảng tường trắng xen kẽ ô vuông nhỏ vừa tạo điểm nhấn vừa giúp tạo sự thông thoáng cho không gian. Màu sắc trung tính đóng vai trò chủ đạo giúp ngôi nhà trở nên thanh lịch và hiện đại hơn.

Tầng 1 bao gồm sân trước, phòng khách, phòng bếp + ăn, sân phơi

Tầng 2 bao gồm 2 phòng ngủ và 1 phòng WC chung
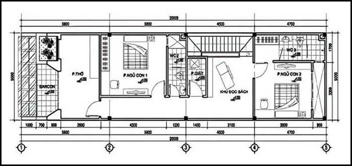
Mẫu nhà 2 tầng 5x13m vuông vắn, trẻ trung
Ngôi nhà được thiết kế khéo léo từ ban công, cửa chính cho tới cửa sổ nhỏ nhằm tận dụng ánh sáng tối đa và tạo sự thông thoáng cho không gian. Các cửa đều được sử dụng chất liệu kính khung nhôm chắc chắn, bền bỉ, tạo điểm nhấn ấn tượng cho công trình.

Tông trắng được sử dụng làm màu sắc chủ đạo tạo nên sự thanh thoát, trang nhã cho tổng thể thiết kế
Với phong cách kiến trúc trẻ trung được thể hiện qua những đường nét vuông vắn, khỏe khoắn, đây chắc chắn là ngôi nhà trong mơ của những gia chủ cá tính, mạnh mẽ.

Mặt bằng công năng tầng 1

Mặt bằng công năng tầng 2
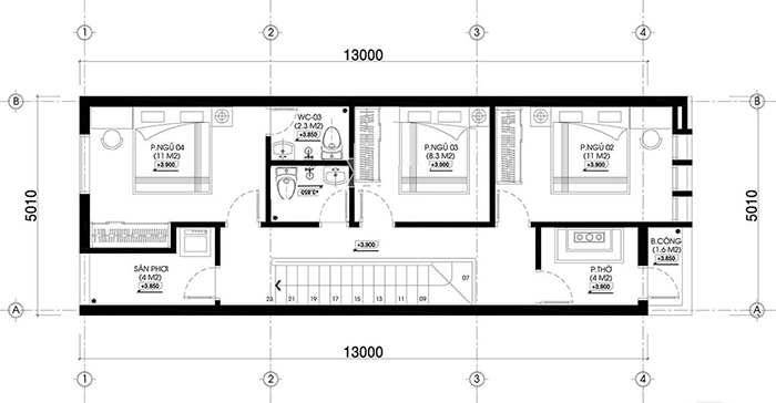
Mẫu thiết kế nhà 2 tầng 5x16m
Ngôi nhà 80m2 dưới đây mang phong cách thiết kế hiện đại, đơn giản nhưng vẫn toát lên sự thanh lịch và sang trọng. Chúng được thiết kế như một hình hộp chữ nhật khỏe khoắn, tầng 2 có khối bê tông nhô ra vô cùng ấn tượng giúp tăng không gian sử dụng hiệu quả.

Thiết kế nhà 2 tầng diện tích 80m2 (5x16m)

Bản vẽ công năng tầng 1

Bản vẽ công năng tầng 2
Hy vọng rằng, bài viết trên đã mang đến cho bạn những mẫu thiết kế nhà 2 tầng mặt tiền 5m đẹp, hiện đại. Nếu Quý gia chủ, các chủ đầu tư đang có ý định tìm một đơn vị thiết kế, thi công xây dựng uy tín, chuyên nghiệp, hãy gọi ngay Xây Dựng Minh Duy theo Hotline/Zalo 0982.96.93.79 để được tư vấn nhanh nhất nhé!
Hãy đồng hành cùng đội ngũ công nhân viên của công ty Xây Dựng Minh Duy để chúng tôi mang đến tổ ấm đáng sống và mở ước dành cho gia đình bạn. Nếu gia đình bạn đang có nhu cầu thiết kế nhà phố, xây dựng nhà, xây nhà cấp 4, sửa nhà, cải tạo lại ngôi nhà, xin vui lòng liên hệ đến công ty Xây Dựng Minh Duy để được công ty tư vấn, báo giá xây dựng một cách tỉ mỉ và chi tiết nhất.
Chúng tôi chân thành cảm ơn đến toàn thể quý khách hàng đã quan tâm và tin tưởng đến công ty trong thời gian qua. Đáp lại những tình cảm đó, chúng tôi sẽ không ngừng phấn đấu, học hỏi để mang đến những thiết kế mới và những ngôi nhà đẹp, đáng sống đến toàn thể quý khách hàng.
Mọi thông tin chi tiết, cũng như cần tư vấn xin liên hệ!
CÔNG TY TNHH TƯ VẤN THIẾT KẾ XÂY DỰNG MINH DUY
VPGD: A45 Đường Số 2, KDC Kim Sơn, P. Tân Phong, Quận 7, TP HCM
Mobile: 0982.96.93.79 (Mr. Minh)
Email: xaydungminhduy@gmail.com
Web: www.xaydungminhduy.com