4 mẫu nhà 2 tầng 3 phòng ngủ 5×10 hiện đại đơn giản mà tiện lợi
Ngày cập nhật: 10/03/2025 bởi Lê Xuân Minh
Mục lục
Mẫu nhà ống 2 tầng 3 phòng ngủ được đánh giá là một trong những kiểu nhà tối ưu về cả chi phí đầu tư lẫn công năng sử dụng. Trong bài viết này, công ty Xây Dựng Minh Duy xin hân hạnh giới thiệu tới bạn đọc một số mẫu nhà 2 tầng 3 phòng ngủ 5×10 đẹp nhất. Dù có diện tích nhỏ hẹp nhưng vẫn đáp ứng nhu cầu sử dụng của các gia đình có nhiều thành viên.
Mẫu nhà 2 tầng 3 phòng ngủ 5×10 có gác lửng phong cách tân cổ điển
Kiến trúc nhà đẹp dưới đây hớp hồn mọi ánh nhìn của người qua đường bởi thiết kế mang đậm hong cách tân cổ điển với vẻ đẹp vượt thời gian. Các chi tiết hoa văn, phào chỉ trang trí đơn giản nhưng vẫn mang đến vẻ đẹp sang trọng và quý phái. Các chi tiết đá ốp chân cột có độ cứng và độ bóng cao, mang tới khả năng chống thấm nước và chống ẩm mốc hiệu quả. Gam màu trắng được sử dụng làm màu chủ đạo tạo nên vẻ đẹp thanh cao cũng như tới sự nhẹ nhàng, thuần khiết. Hệ mái thái đẹp mắt giúp cho không gian ngoại thất của mẫu nhà ống đẹp trở nên thanh thoát, cao ráo hơn.

Mặt tiền công trình gây cuốn hút với gam màu trắng chủ đạo
Tầng 1 của mẫu nhà 2 tầng 3 phòng ngủ 5×10 gồm 1 phòng khách sang trọng. Tiếp đến là không gian phòng bếp kết hợp phòng ăn. Phòng ngủ được đặt ở phía cuối nhà để đảm bảo sự riêng tư và thoải mái khi nấu nướng. Bên cạnh phòng ngủ có 1 nhà vệ sinh chung.

Mặt bằng tầng 1
Không gian tầng lửng có công năng sử dụng đơn giản gồm 1 phòng sinh hoạt chung ấm cúng để gia đình ngồi quây quần trò chuyện cùng nhau. Trước phòng có một khoảng thông tầng giúp không gian bên trong nhà sáng sủa và thoáng đãng hơn.

Mặt bằng tầng lửng
Tầng 2 bao gồm 2 phòng ngủ và 1 phòng thờ. Không gian được sắp xếp vô cùng thoáng mát và thuận tiện đi lại. Phòng thờ được thiết kế trang nghiêm, hướng ra khoảng ban công thoáng.

Mặt bằng tầng 2
Mẫu nhà 2 tầng 3 phòng ngủ 5×10 mái nhọn trẻ trung
Ngoại thất ngôi nhà sau có sự phối hợp hài hòa cũng như sự cân đối tuyệt mỹ từ màu sắc cho đến các chi tiết, họa tiết trang trí. Nhờ thiết kế mái chóp nhọn cá tính giúp mẫu nhà 2 tầng 3 phòng ngủ 5×10 trông sang trọng và cao ráo hơn. Hệ thống tường rào bao quanh cùng với những trụ cột to được thiết kế cách điệu tạo tính thẩm mỹ cũng như sự an toàn cho ngôi nhà. Lan can ban công được thiết kế tinh tế với chất liệu sắt phun sơn tĩnh điện tạo không gian sống tươi mới và hoàn hảo.

Mặt tiền ngôi nhà gây ấn tượng với thiết kế đầy khỏe khoắn
Tầng 1 ngôi nhà được bố trí: Sân trước, phòng bếp ăn, phòng khách, nhà vệ sinh và phòng ngủ. Các không gian được bố trí để tối ưu diện tích. Ngoài ra, các khoảng tiểu cảnh xanh được sắp đặt khéo léo trong nhà để mang đến sự trong lành, mát mẻ.
Tầng 2 bao gồm: Ban công, phòng làm việc, 2 phòng ngủ và nhà vệ sinh chung. Cầu thang được đặt sát tường nên diện tích hiệu quả, đồng thời tạo thành hành lang thông thoáng cho các phòng.

Mặt bằng tầng 1 và 2
Mẫu nhà 2 tầng 3 phòng ngủ 5×10 mái thái có gác lửng
Mẫu nhà 2 tầng 3 phòng ngủ 5×10 thiết kế theo kiến trúc nhà phố hiện đại theo hơi hướng kiểu pháp với vòm cong trên tầng mái. Thiết kế hệ mái dốc chữ A 2 chiều đan đan xếp giật cấp tạo nên kiến trúc độc đáo cho công trình. Mặt tiền tầng 1 được ốp đá đen sang trọng, còn tầng 2 ốp đá gốm màu vàng nhạt. Cửa chính bằng kính với khung thép mạ kẽm trắng giúp lấy sáng cho không gian bên trong ngôi nhà. Ngoài ra, mẫu nhà 2 tầng mái thái còn kết hợp với các chi tiết hoa văn nhẹ nhàng và mềm mại với 2 khối trụ tròn trên sân thượng đăng đối giúp cho hình khối mạnh mẽ hơn.

Ngoại thất mẫu nhà ống 2 tầng có gác lửng kiểu pháp
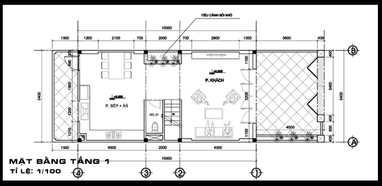
Ở tầng 1 mẫu nhà đẹp này chúng tôi bố trí 2 không gian chính là phòng khách và phòng bếp ăn liên thông với nhau. Một tiểu cảnh sân vườn nhỏ ở trước là khoảng thông tầng, cầu thang và 1 phòng vệ sinh bên cạnh. Ngoài ra cuối nhà còn có thiết kế thêm giếng trời phía sau.

Mặt bằng tầng 1
Mẫu nhà 2 tầng đẹp mái thái phong cách kiểu pháp này có thêm 1 tầng lửng và khoảng thông tầng ở giữa tạo cho lưu thông không khí và lấy sáng đối lưu. Tầng lửng thiết kế phòng ngủ đẹp cho ông bà thuận tiện trong sử dụng. Phòng được bố trí 1 nhà WC khép kín cùng khoảng thông tầng mát mẻ.

Mặt bằng tầng lửng
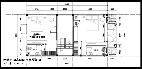
Tầng 2 thiết kế 2 phòng ngủ master cho cho vợ chồng chủ nhà và con cái. Mỗi phòng đều có wc khép kín trước có ban công sân thượng kết hợp

Mặt bằng tầng 2
Thiết kế nhà 2 tầng 3 phòng ngủ 5×10 đơn giản hiện đại
Mặt tiền mẫu nhà 2 tầng 3 phòng ngủ 5×10 trông khá đơn giản với gam màu trắng chủ đạo kết hợp cùng tông nâu xám thanh nhã. Thiết kế cổng không cầu kỳ nhưng chắc chắn, với các khe hở, giúp cho ngôi nhà thông thoáng hơn. Ngoài ra, tại tầng 1 cũng như tầng 2 được trang trí gạch thông gió hình bánh ú đẹp mắt giúp ngoại thất ngôi nhà trở nên nổi bật và thu hút hơn.

Phối cảnh 3D mẫu nhà 2 tầng 3 phòng ngủ mái bằng
Tầng 1 ngôi nhà được chia ra làm các không gian riêng biệt để thuận tiện cho việc sinh hoạt. Đầu tiên là phòng khách, khu vực giếng trời và 1WC. Giếng trời và WC được bố trí cạnh cầu thang, giúp tiết kiệm diện tích đáng kể. Tiếp đến phòng bếp và 1 phòng ngủ. Phòng bếp và phòng ăn được sắp xếp gọn gàng, có cửa sổ thông gió, giúp hạn chế mùi đồ ăn. Phòng ngủ được bố trí tại vị trí cuối nhà, cạnh khu vực sân sau, thoáng gió và mát mẻ.
Tầng 2 bao gồm: 2 phòng ngủ, 1 sân phơi, 1WC và 1 phòng thờ. Khu vực sân phơi hướng ra mặt tiền ngôi nhà, thuận tiện cho việc giặt và phơi đồ. 1 phòng ngủ được thiết kế cạnh sân, WC được bố trí cạnh cầu thang. Căn phòng ngủ còn lại nằm cạnh cầu thang, bên cạnh là phòng thờ. Các phòng ngủ đều hướng đến sự đơn giản nhưng đều hướng đến sự tiện nghi/

Mặt bằng công năng ngôi nha
Một vài lưu ý khi xây dựng nhà 2 tầng 3 phòng ngủ 5×10
Nhà phố có diện tích 50m2 không phải là diện tích quá chật nhưng cũng không quá rộng rãi. Vì thế, ngay từ bước lên ý tưởng thiết kế, đến trang trí nội thất thì bạn và kiến trúc sư nên thực hiện sao cho hợp lý. Dưới đây là một số lưu ý dành cho các gia chủ khi xây mẫu nhà 2 tầng 3 phòng ngủ 5×10:
Với nhà 2 tầng 5×10 nên chọn thiết kế đơn giản, lược bớt đi những chi tiết cầu kỳ, kiểu cách để tạo độ thông thoáng, khang trang cho không gian sống. Nếu bạn yêu thích các phong cách tân cổ điển mang tính thẩm mỹ nên có sự điều chỉnh, biến tấu để phù hợp
Bố trí và xây dựng mặt bằng sử dụng khoa học, phân chia diện tích và vị trí các phòng phù hợp với diện tích nhà ở và nhu cầu của gia đình. Nhà 50m2 2 tầng 3 phòng ngủ khá phù hợp với những gia đình có từ 3 đến 5 thành viên.
Xây nhà nên lựa chọn thời điểm thích hợp. Tránh chọn vào mùa mưa hay khi thời tiết quá nóng bức. Thời điểm lý tưởng là 3 tháng đầu năm hoặc 3 tháng cuối năm.
Chi phí xây dựng nhà 2 tầng 5×10 3 phòng ngủ thực tế không quá lớn. Song bạn nên cân nhắc lựa chọn các nguyên vật liệu chất lượng, để không ảnh hưởng đến quá trình sinh hoạt sau này.
Các mẫu nhà 2 tầng 3 phòng ngủ 5×10 trên đây được rất nhiều gia đình yêu thích bởi đáp ứng được nhu cầu sinh hoạt của các gia đình. Nếu Quý gia chủ, các chủ đầu tư đang có ý định tìm một đơn vị thiết kế, thi công xây dựng uy tín, chuyên nghiệp, hãy gọi ngay Xây Dựng Minh Duy theo Hotline/Zalo 0982.96.93.79 để được tư vấn nhanh nhất nhé!
Hãy đồng hành cùng đội ngũ công nhân viên của công ty Xây Dựng Minh Duy để chúng tôi mang đến tổ ấm đáng sống và mở ước dành cho gia đình bạn. Nếu gia đình bạn đang có nhu cầu thiết kế nhà phố, xây dựng nhà, xây nhà cấp 4, sửa nhà, cải tạo lại ngôi nhà, xin vui lòng liên hệ đến công ty Xây Dựng Minh Duy để được công ty tư vấn, báo giá xây dựng một cách tỉ mỉ và chi tiết nhất.
Chúng tôi chân thành cảm ơn đến toàn thể quý khách hàng đã quan tâm và tin tưởng đến công ty trong thời gian qua. Đáp lại những tình cảm đó, chúng tôi sẽ không ngừng phấn đấu, học hỏi để mang đến những thiết kế mới và những ngôi nhà đẹp, đáng sống đến toàn thể quý khách hàng.
Mọi thông tin chi tiết, cũng như cần tư vấn xin liên hệ!
CÔNG TY TNHH TƯ VẤN THIẾT KẾ XÂY DỰNG MINH DUY
VPGD: A45 Đường Số 2, KDC Kim Sơn, P. Tân Phong, Quận 7, TP HCM
Mobile: 0982.96.93.79 (Mr. Minh)
Email: xaydungminhduy@gmail.com
Web: www.xaydungminhduy.com