Mẫu thiết kế nhà phố 2 tầng đẹp, hiện đại
Ngày cập nhật: 10/03/2025 bởi Lê Xuân Minh
Thiết kế nhà phố 2 tầng được xem là mẫu thiết kế nhà nhận được nhiều quan tâm của khách hàng, thiết kế kiến trúc hiện đại, chi phí đầu tư không quá cao và quan trọng là mang đến không gian sống tiện nghi. Hãy cùng Xây Dựng Minh Duy chiêm ngưỡng mẫu thiết kế nhà ống 2 tầng hiện đại dưới đây để hoàn thiện kế hoạch thi công của gia đình nhé.

Mẫu thiết kế nhà phố 2 tầng đẹp, hiện đại
Thông tin yêu cầu thiết kế nhà phố 2 tầng
Diện tích thiết kế: 4x15 m
Công trình: nhà ống 2 tầng
Kiến trúc: hiện đại
Công năng sử dụng:
+ Tầng 1: phòng khách, phòng ăn bếp, nhà vệ sinh
+ Tầng 2: phòng ngủ 1, phòng ngủ 2, phòng thờ
Ý tưởng thiết kế mẫu nhà ống 2 tầng hiện đại

Mẫu thiết kế nhà phố 2 tầng đẹp, hiện đại
Mẫu thiết kế nhà 2 tầng này chú trọng đến không gian sống, có mặt tiền và khối ban công, hệ thống cửa sổ và cửa chính sẽ được xử lý chuẩn đảm bảo việc đón sáng, đón thoáng.
Thiết kế nhà yêu cầu có sân trước, khối dầm tầng 2 và dầm ban công đua rộng, đảm bảo độ bao phủ cho khoảng sân phía trước. Không gian này hoàn toàn có thể tận dụng để làm nơi để xe cho các thành viên.
Công năng sử dụng của gia đình khá đơn giản, thiết kế phòng khách, phòng bếp, khu giặt phơi ở dưới tầng 1. Tầng 2 thiết kế 1 phòng ngủ chính và 1 phòng ngủ cho hai con, phòng thờ thiết kế hướng ban công, đảm bảo không gian thông thoáng và đón nhận được nhiều ánh sáng tự nhiên, phân bố đều cho các không gian phía trong.
Chiêm ngưỡng mẫu thiết kế nhà ống đẹp 2 tầng hiện đại

Mẫu thiết kế nhà phố 2 tầng đẹp, hiện đại
Hình khối kiến trúc đơn giản, hình khối thẳng mang đến cái nhìn cảm quan khá tích cực. Việc xử lý khéo léo mặt tiền, từ cửa cổng thiết kế cách điệu cho đến khối ban công đua rộng trên tầng 2 được đầu tư khá tỉ mỉ. Lan can ban công thiết kế bằng kính cường lực, bồn hoa tiểu cảnh được xử lý phần chân tường với lam nhựa giả gỗ, khối tường ốp đá chạy dọc và khoảng dầm đua rộng tạo điểm nhấn mới mẻ, độc đáo và dễ nhận biết cho công trình.
Kỹ thuật thi công tập trung chủ yếu ở mặt tiền tầng 2, tuy nhiên với bố cục phẳng, mặt trần được ốp gỗ kết hợp với hệ thống đèn led chiếu sáng, đảm bảo cho mẫu thiết kế nhà luôn nổi bật hơn hẳn những mẫu thiết kế khác.
Mẫu nhà ống 2 tầng với ngoại thất sáng màu, màu be sáng là chủ đạo, kết hợp với màu nâu đậm và nâu vân gỗ, vật liệu hiện đại như kính cường lực, cửa nhôm Xingfa màu nâu vân gỗ sáng, tất cả đều được phối hợp một cách thông minh, phô diễn và trình làng mẫu nhà phố đẹp hút hồn và hứa hẹn cuộc sống tiện nghi cho gia đình trẻ.
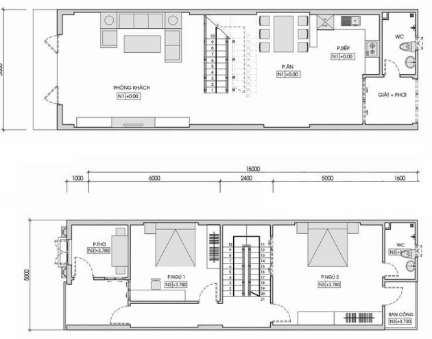
Mặt bằng công năng sử dụng mẫu thiết kế nhà ống 2 tầng hiện đại

Mẫu thiết kế nhà phố 2 tầng đẹp, hiện đại
Phương án mặt bằng là một trong những phương án chiếm nhiều thời gian trao đổi là lựa chọn nhất trong buổi làm việc của hai bên. Từ nhu cầu sử dụng thực tế, điều kiện đầu tư, kiến trúc sư sẽ lấy đó làm căn cứ để triển khai ý tưởng thiết kế. Mặt bằng mẫu nhà ống 2 tầng được xử lý đảm bảo mật độ thông thoáng, thuận tiện cho việc sử dụng.
Tầng 1
Thiết kế và bố trí phòng khách ngay cạnh cửa chính, việc này tuân thủ nghiêm ngặt những yếu tố phong thủy về vị và hướng. Cầu thang thông tầng được bố trí ở trung gian, ngăn cách phòng khách và phòng bếp phía trong, đồng thời có thể sử dụng để làm vách ngăn, điểm nhấn trang trí cho phòng khách.
Phòng ăn và bếp nấu thiết kế liên thông với nhau, bếp hình chữ L cùng với hệ tủ trên cáo sát trần, tạo không gian rộng để sử dụng cho gia đình. Nhà vệ sinh chung của tầng 1 được bố trí ở góc trong cùng, ngay phía ngoài là khu giặt phơi, thuận tiện và đảm bảo việc sinh hoạt.
Tầng 2
Mẫu nhà ống 2 tầng hiện đại bố trí phòng thờ nhỏ hướng ban công trước, khoảng hành lang trước bàn thờ thiết kế khá rộng, đảm bảo cho việc di chuyển. Phía trong là phòng ngủ của hai con, thiết kế ngay cạnh sảnh thang bộ. Phòng ngủ chính thiết kế bên kia cầu thang, thiết kế có nhà vệ sinh khép kín và ban công phụ để lấy sáng và đón thoáng.
Mẫu thiết kế nhà dự trù kinh phí đầu tư hơn 1 tỷ, phối cảnh hiện đại và công năng khoa học, hoàn toàn chinh phục chủ đầu tư mà không hề có một sự chỉnh sửa nào.
Hãy liên hệ với chúng tôi để được kiến trúc sư tư vấn cụ thể với mặt bằng cũng như nhu cầu công năng của gia đình bạn nhé.
Hãy đồng hành cùng đội ngũ công nhân viên của công ty Xây Dựng Minh Duy để chúng tôi mang đến ngôi nhà đáng sống dành cho gia đình bạn. Nếu gia đình bạn đang có nhu cầu xây nhà, sửa nhà, cải tạo lại ngôi nhà, xin vui lòng liên hệ đến công ty Xây Dựng Minh Duy để được công ty tư vấn, báo giá xây dựng một cách tỉ mỉ và chi tiết nhất.
Mọi thông tin chi tiết, cũng như cần tư vấn xin liên hệ!
CÔNG TY TNHH TƯ VẤN THIẾT KẾ XÂY DỰNG MINH DUY
VPGD: A45 Đường Số 2, KDC Kim Sơn, P. Tân Phong, Quận 7, TP HCM
Mobile: 0982.96.93.79 (Mr. Minh)
Email: xaydungminhduy@gmail.com
Web: www.xaydungminhduy.com